Esta parcela urbana de 2.007 m² se encuentra en la urbanización Son Gual II e incluye un proyecto para la construcción de una vivienda unifamiliar contemporánea. El diseño prevé 350 m² construidos, con 217 m² de superficie habitable distribuidos en dos plantas más sótano, piscina privada y un amplio solárium con vistas abiertas al entorno natural.
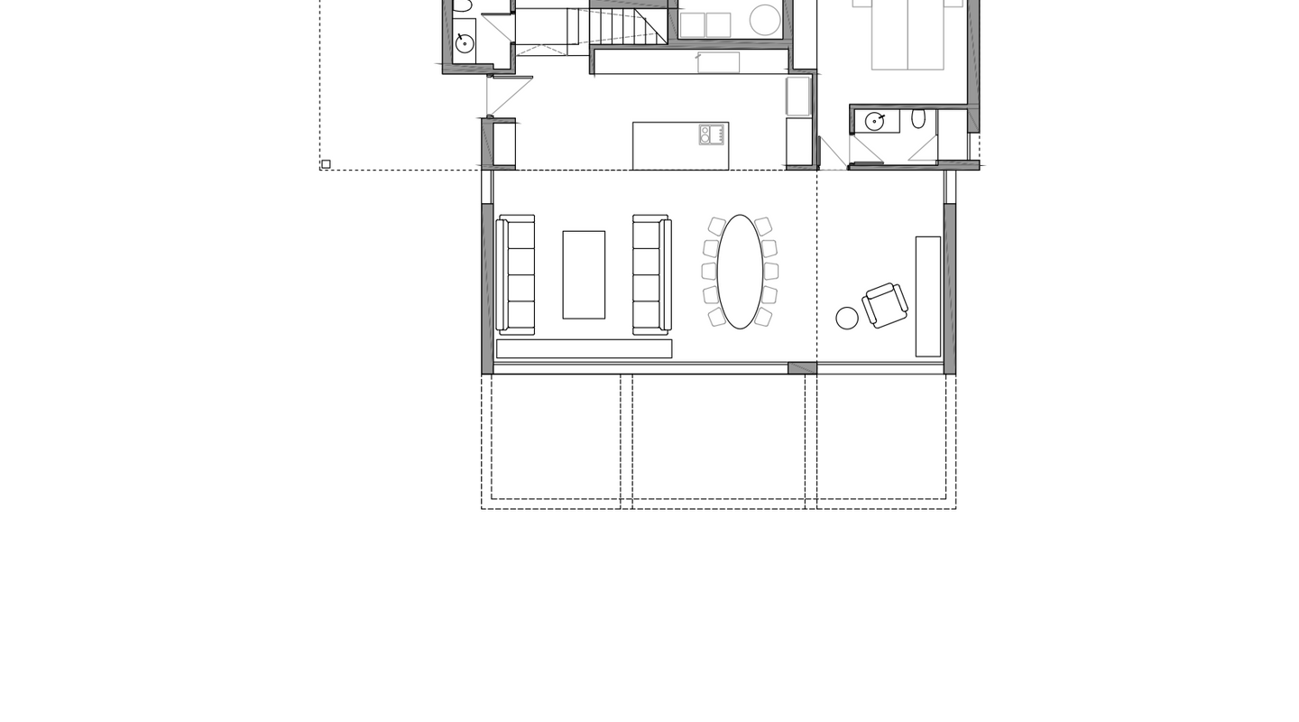
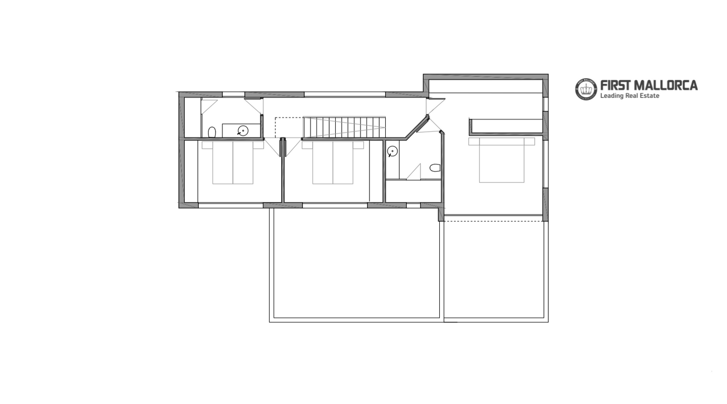
La vivienda proyectada dispone de 4 dormitorios y 5 baños en total (2 en suite, 2 compartidos y 1 aseo de invitados). En la planta baja se encuentra un dormitorio, una cocina con isla integrada en un salón-comedor de planta abierta y acceso directo al jardín a través de grandes ventanales. En la planta superior hay tres dormitorios, todos con acceso a una amplia terraza, mientras que el solárium de 64 m² ofrece vistas despejadas al bosque y al paisaje circundante.
En el exterior, la piscina orientada al sur de 43 m² está rodeada de zona ajardinada, ofreciendo privacidad y un espacio perfecto para disfrutar al aire libre. El sótano incluye un garaje para dos o más coches, además de trastero.
La urbanización Son Gual II, situada a 150 metros sobre el nivel del mar, cuenta con agua, electricidad, alcantarillado y telecomunicaciones. Su único punto de acceso refuerza la privacidad y la seguridad. La ubicación es excelente: a solo 10 minutos del aeropuerto internacional de Palma, 15 minutos del centro de la ciudad y a pocos metros del campo de golf Son Gual.
Póngase en contacto con nuestro equipo de First Mallorca para más información o para concertar una visita.






















En progreso/ Excluido

























