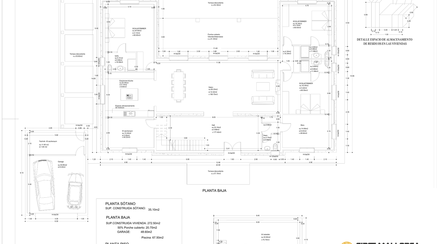
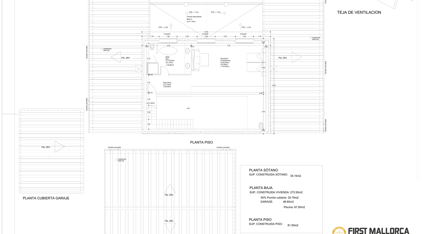
Eine seltene Gelegenheit, ein privates Baugrundstück in einer ruhigen und sehr gefragten Lage nahe Llucmajor zu erwerben. Für ein 320 m² großes Haus mit großem Pool wurde ein Bauantrag gestellt; die Genehmigung wird für den Sommer 2026 erwartet.
Das Grundstück ist vollständig eingefriedet durch eine charmante Natursteinmauer und grenzt an Naturschutzgebiet und Wald, was absolute Privatsphäre garantiert. Die erhöhte Lage sorgt für eine ruhige und naturnahe Umgebung, während das Zentrum von Llucmajor in nur 4 Autominuten erreichbar ist.
Ideal für alle, die ein idyllisches Grundstück inmitten von Natur und Ruhe suchen.






















In Arbeit/ Nicht erforderlich













































