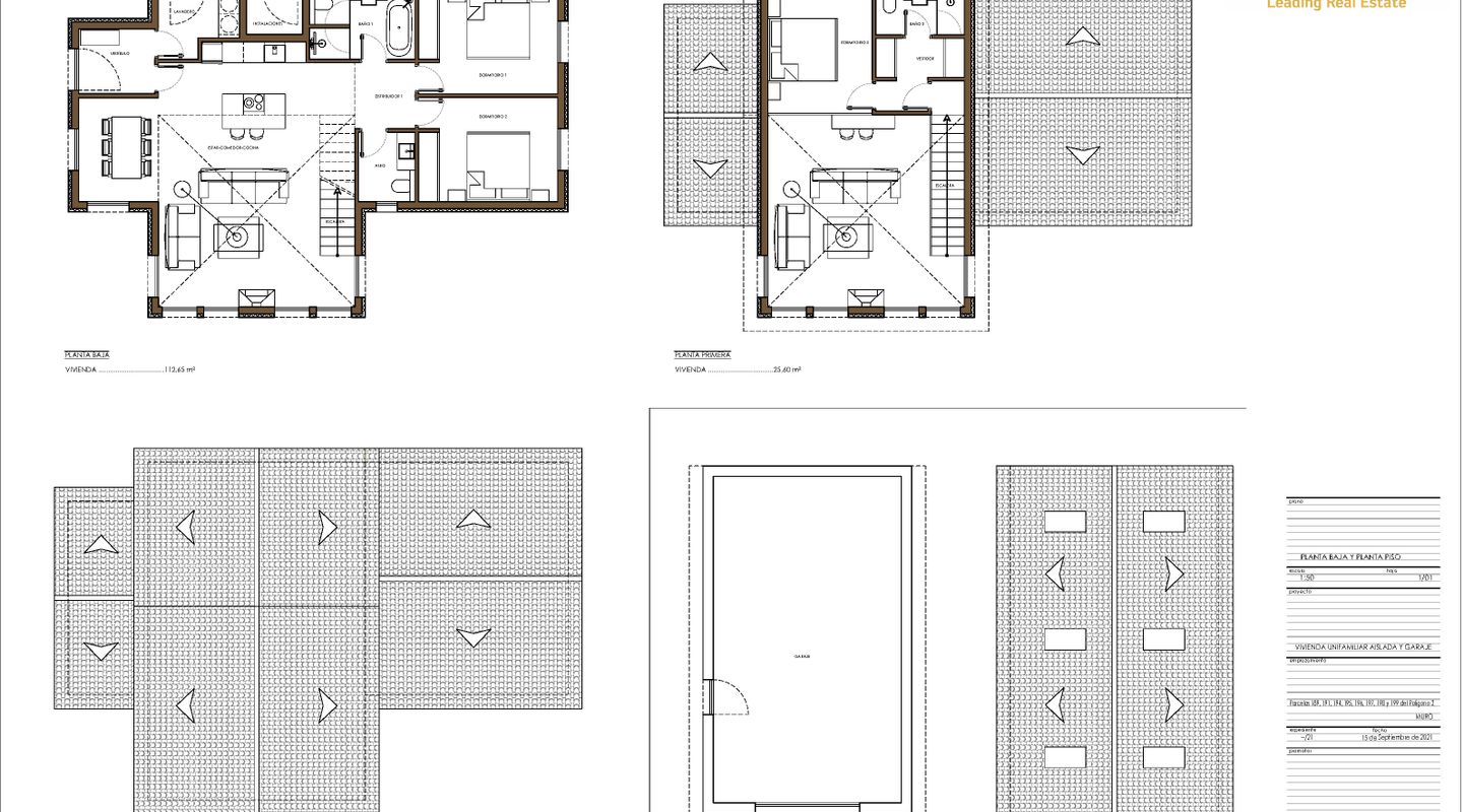
Rustikales Grundstück zum Verkauf in Muro mit einer ungefähren Fläche von 25.664 m² und Projekt für den Bau eines freistehenden Einfamilienhauses mit Garage und Pool.
Das Grundstück bietet eine sehr ruhige und private natürliche Umgebung und ist ideal für alle, die ein Haus inmitten der Natur bauen möchten, ohne auf eine gute Anbindung an das Dorf und die Strände im Norden von Mallorca zu verzichten.
Ein besonderer Vorteil dieser Immobilie ist der eigene Grundwasserbrunnen mit einer Förderleistung von etwa 15.000 Litern pro Stunde. Dieser Brunnen ist mit einem Pumpsystem verbunden, das sich in einem Pumpenhaus neben dem Safreig befindet und von einem Dieselmotor betrieben wird. Dadurch können die drei Grundstücksteile separat bewässert werden.
Das Projekt sieht den Bau des Hauses mit Außenbereichen, Pool und Teich vor, die sich harmonisch in die ländliche Landschaft der Umgebung einfügen.
Eine hervorragende Gelegenheit für alle, die ein großes Grundstück mit Bauprojekt und eigener Wasserversorgung in einer sehr gefragten Gegend im Norden Mallorcas suchen.
Kontaktieren Sie unser Team von First Mallorca für weitere Informationen oder einen Besichtigungstermin.


























In Arbeit/ Nicht erforderlich































