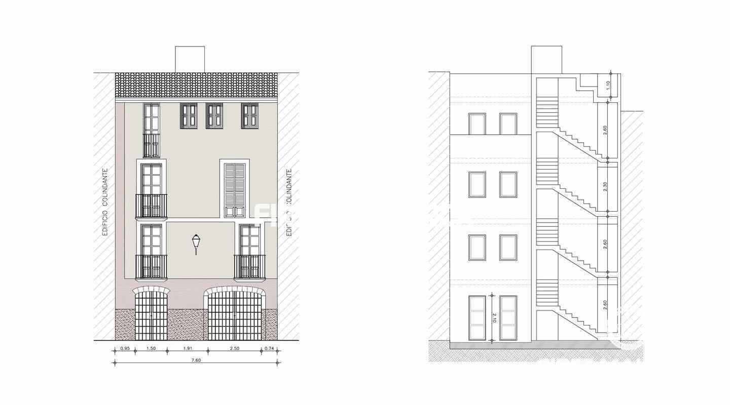
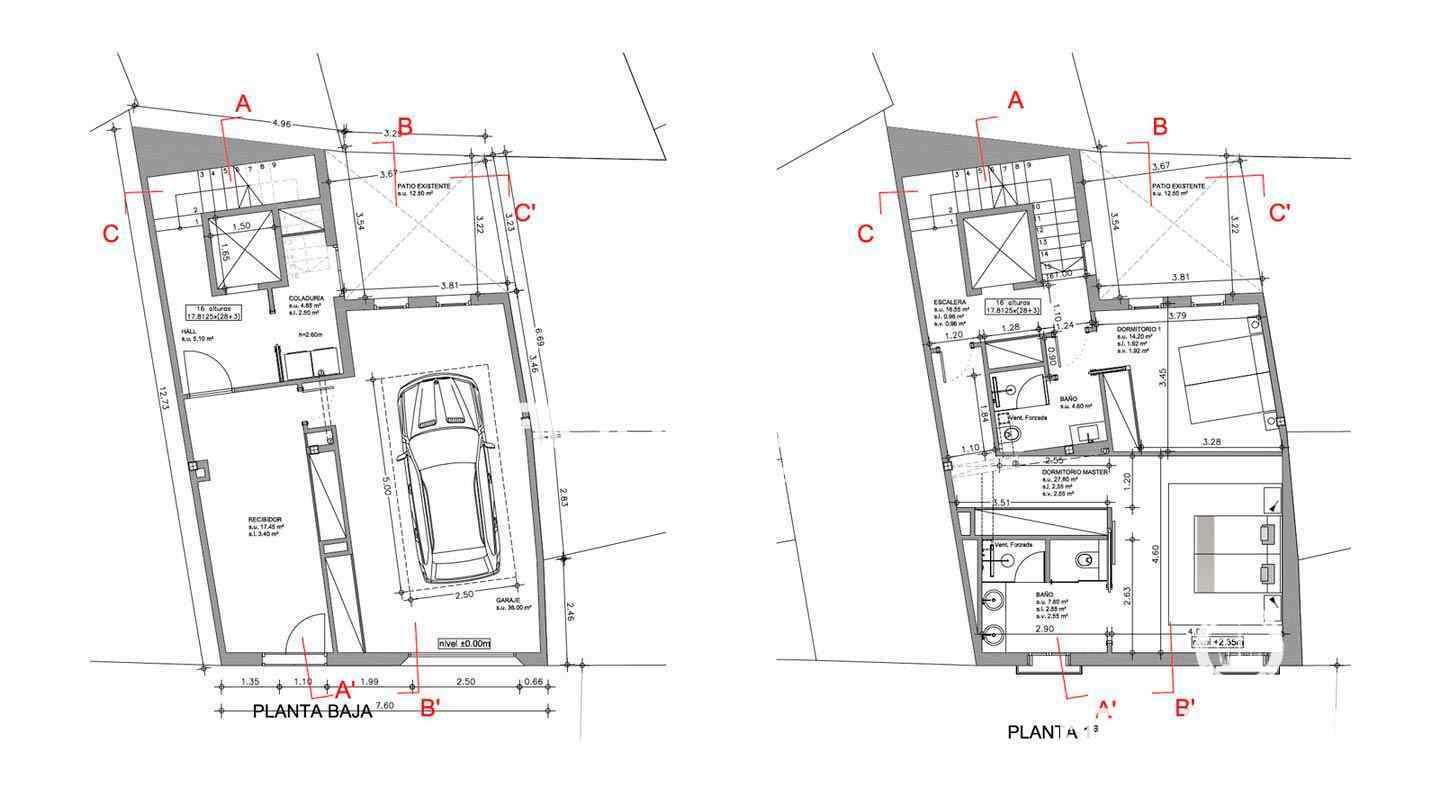
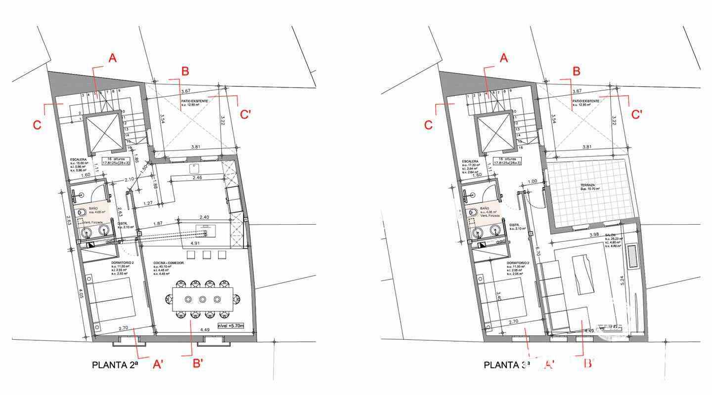
Dieses Grundstück befindet sich im Zentrum von Palma - Sa Gerrería in einer sehr ruhigen Straße.
Es gibt einen vor-Projeckt der umfasst 4 Schlafzimmer, einen privaten Parkplatz und einen kleinen Pool auf dem Dach. Eine gute Gelegenheit, ein Haus nach Ihren Wünschen zu bauen. Es ist auch möglich es in verschiedene Apartments zu teilen.






In Arbeit/ Nicht erforderlich






















