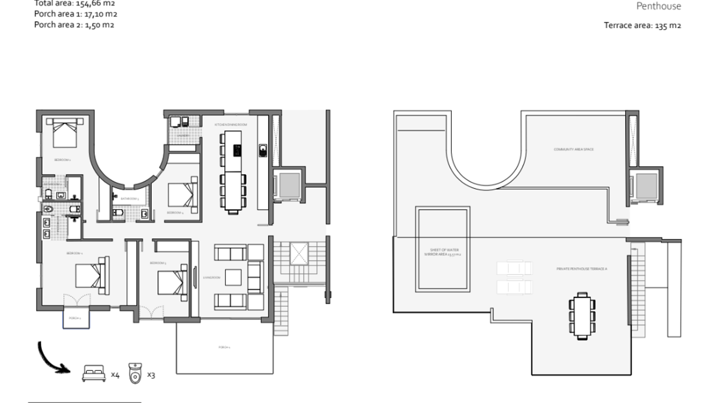
Diese neue Wohnanlage in Santa Ponsa bietet 24 hochwertige Apartments, die jeweils 155 m² Wohnfläche und eine 18 m² große überdachte Terrasse bieten. Alle Apartments verfügen über 4 Schlafzimmer, 3 Bäder (eines en-suite im Hauptschlafzimmer) und elegante Innenräume mit Holzausstattung und Steinböden. Die geräumige offene Küche ist mit Miele-Geräten ausgestattet. Besonders hervorzuheben ist, dass alle Penthäuser über eine beeindruckende 90 m² große Dachterrasse mit privatem Pool verfügen, ideal, um atemberaubende Ausblicke zu genießen und das Leben im Freien in vollen Zügen zu erleben.
Der Bau verwendet fortschrittliche Technologien, darunter ein Doppelströme-Belüftungssystem, das für eine Lüftung sorgt, ohne dass Lärmbelästigung oder Temperaturschwankungen auftreten. Zudem gibt es eine Fußbodenheizung für optimalen Komfort.
Die Anlage bietet einen großen Infinity-Pool, Gemeinschaftsgärten, einen Aufzug, der bis auf das Dach führt, und eine Tiefgarage. Santa Ponsa besticht durch eine beeindruckende Umgebung mit Stränden und Golfplätzen in der Nähe sowie einer ausgezeichneten Infrastruktur, nur 15 Minuten von Palma entfernt.








































In Arbeit/ Nicht erforderlich



































































