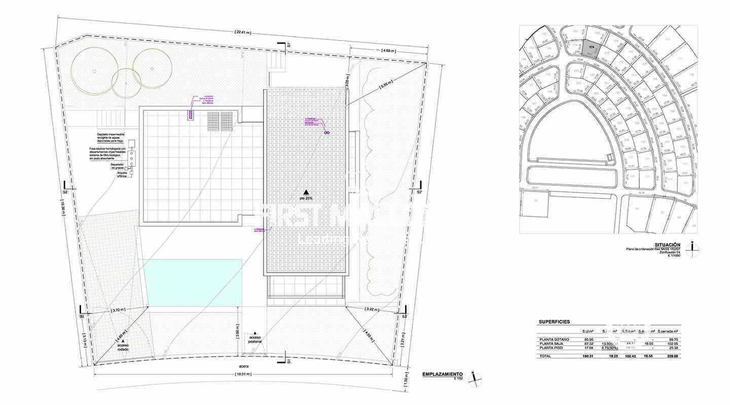
This plot of 380 m² with building licence is located in a quiet residential area in Bonaire. In the neighbourhood, there are exclusive detached properties. Restaurants, cafés and shops are just a short drive away. The harbour of Bonaire and the beach of Mal Pas are within walking distance.
Bonaire is one of the most popular residential areas on Mallorca's north coast. The beautiful sandy Playa de Muro beach and several small bays can be reached in a few minutes by car. And thanks to the good motorway connection, the island capital Palma can be reached in approximately 45 minutes.
Please contact our FIRST MALLORCA team for more information about this property.
















In progress/ Exempt




















