We present a unique opportunity in Cala Murada: a spectacular plot of 3.112 m² in front line of the sea, with an approved executive project and active building permits. The plot has been completely cleared, including the demolition of the previous house, offering a perfect canvas for a luxury property.
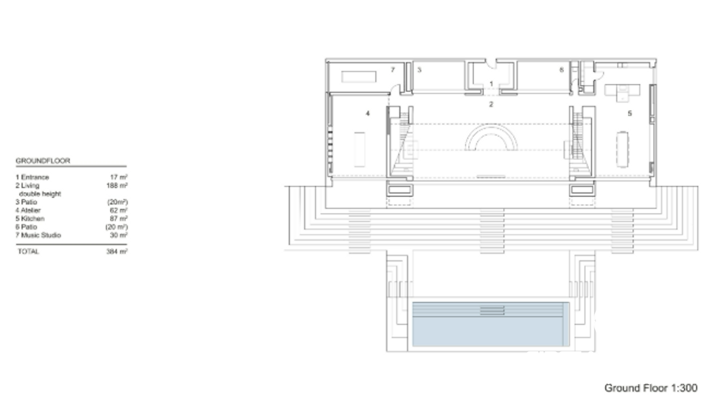
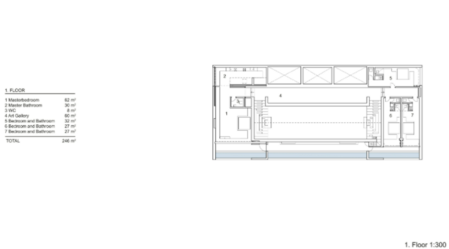
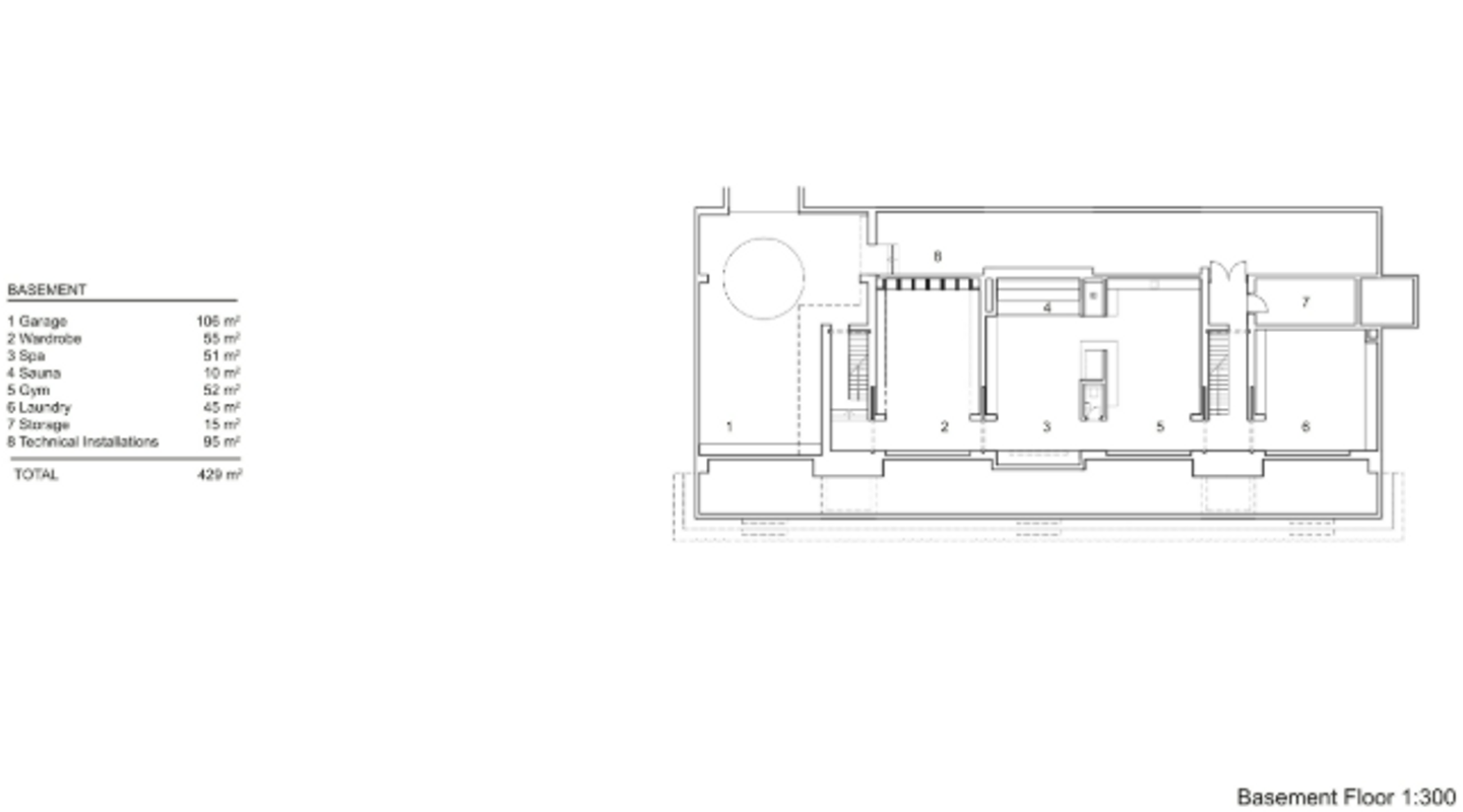
The current project contemplates the construction of a stunning designer villa of approximately 1,000 m², which will include four spacious bedrooms with unbeatable views, five exclusively designed bathrooms, an art room, a work room, gymnasium, private sauna, two swimming pools, Jacuzzi and spectacular terraces and landscaped outdoor areas.
In addition, there is the possibility of requesting an extension of the building permits in case you want to develop another project adapted to new needs.
A privileged location on the Mallorcan coast, ideal for those seeking exclusivity, modernity and an unrivalled connection to the sea.
Contact us for more information and private visit.






















In progress/ Exempt

















































