Unique opportunity! Garage with approved project for a detached house in a privileged location For sale spacious garage of 200 m² with a modern and functional single-family house project, ready to build, the project has a licence applied for and offers the possibility to create a tailor-made home or to invest in three independent flats. Quiet area with excellent access to services, shops, public transport and schools.
Architectural design that allows for a single-family home of 260 m² distributed over three floors or three independent flats, ideal for investment.
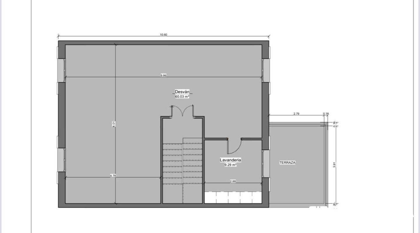
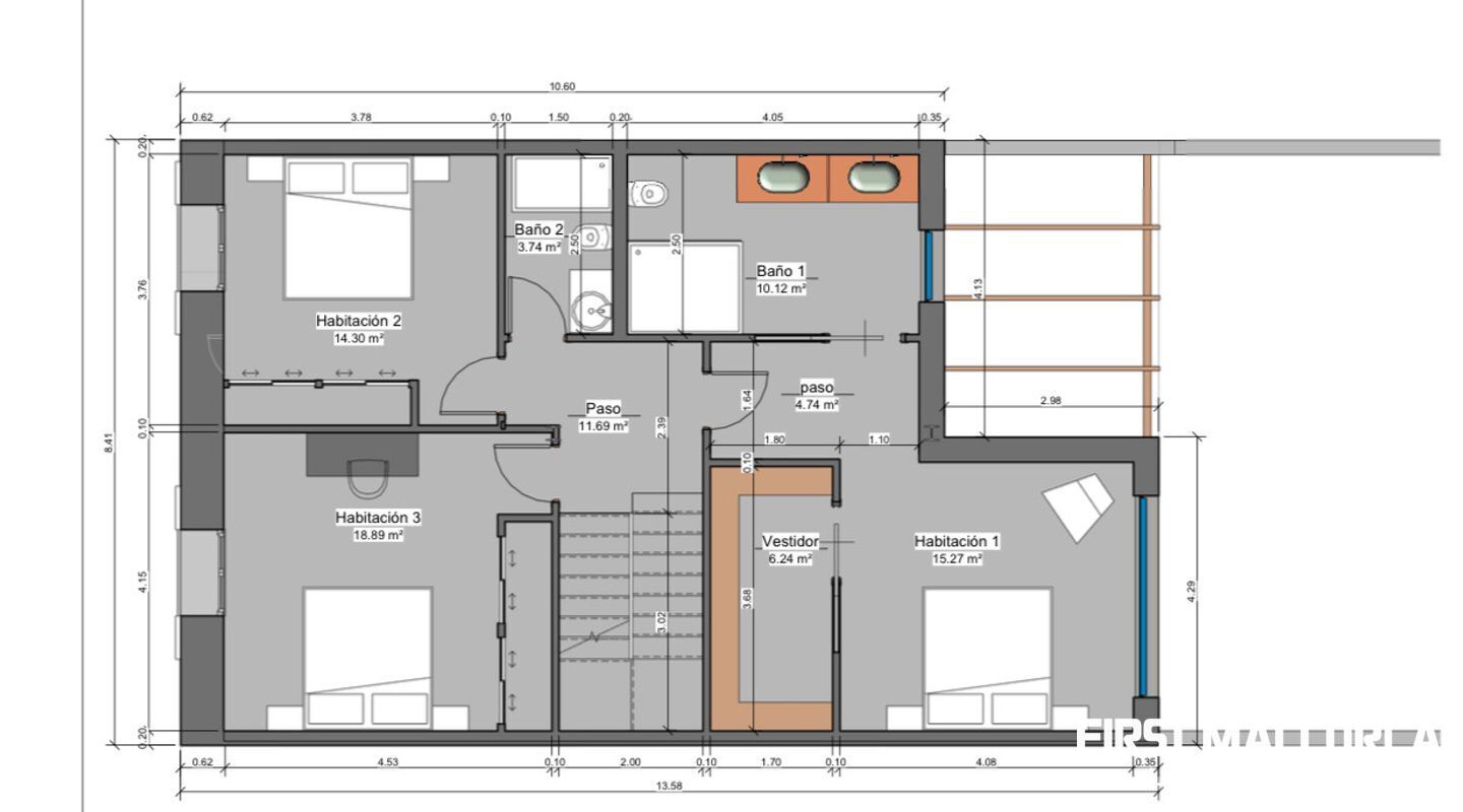
Optimised layout for single-family housing. Ground floor: Garage for two vehicles, open-plan day area with living-dining room and open kitchen, bathroom, toilet and access to patio with swimming pool. First floor: Master suite with dressing room, private bathroom and terrace, two double bedrooms with fitted wardrobes and bathroom. First floor: Separate laundry room and large terrace-solarium with unobstructed views. Project approved and licence applied for, which speeds up the start of the works.
Investment potential with the possibility of creating three independent flats offers an excellent opportunity for individual rental or sale. The modern and functional design maximises space and luminosity, the exterior spaces are designed for enjoyment and relaxation. Flexibility to adapt the property to the needs of each family or investor.
Don't miss this opportunity to build your dream home or make a profitable investment!












 In progress/ Exempt
In progress/ Exempt














