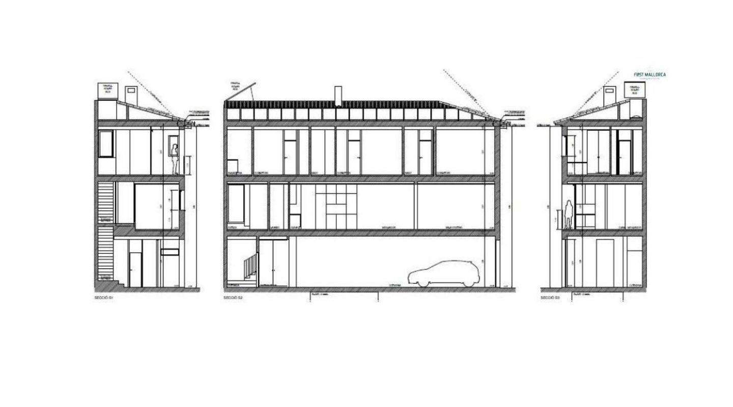
Urban plot in Pollença with approved basic project to build a three storey detached house with garage on the ground floor, living room and kitchen on the first floor, and three bedrooms plus two bathrooms on the second floor. From the living-dining room and the main bedroom there are views of the Tramuntana mountains and the Sant Jordi stream. Currently on the plot there is a one-storey storage room with an approved permission to demolish. Do not hesitate to contact our FIRST MALLORCA team for further information and an appointment to view the property.


















In progress/ Exempt




















