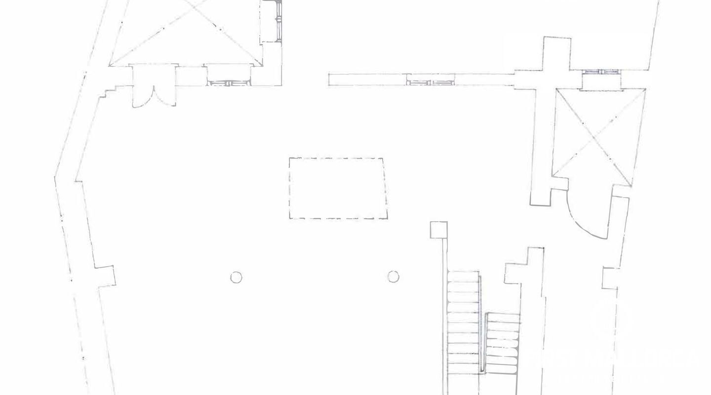
Local ubicado en el emblemático barrio de Sa Gerreria, distribuido en planta baja y primera planta con una superficie construida de 253 metros cuadrados m2 y 108 metros cuadrados respectivamente. Se encuentra actualmente alquilado a un negocio de restauración, en pleno funcionamiento, muy conocido en la zona y con una larga trayectoria. Por tema de confidencialidad no se puede identificar el local en la web pero si quiere saber más información y todos los detalles del mismo no dude en contactar con nuestros agentes de ventas de First Mallorca.
























En progreso/ Excluido














































