Terreno con proyecto y licencias de construcción concedidas, situado a tan solo 5 minutos a pie de las playas de S’Illot y Cala Morlanda. La parcela, de aproximadamente 14.332 m², ofrece una ubicación ideal: un entorno rústico y tranquilo, pero muy cerca del casco urbano.
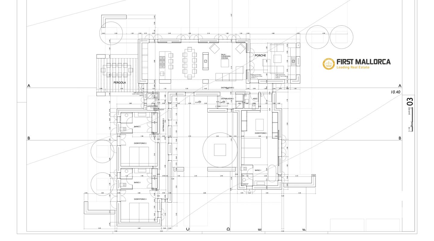
El proyecto contempla una elegante vivienda unifamiliar aislada de 262 m² con piscina y amplias terrazas. La casa contará con tres dormitorios con baño en suite, aseo de invitados, un luminoso salón con cocina abierta, porche y pérgola. Construcción con materiales de primera calidad, diseño funcional y ambiente mediterráneo.
Dispone de conexión de agua y posibilidad de acceso a la red eléctrica (no incluida en el proyecto). Vistas despejadas y una ubicación perfecta para quienes buscan privacidad sin renunciar a la proximidad del mar y los servicios.














En progreso/ Excluido





































