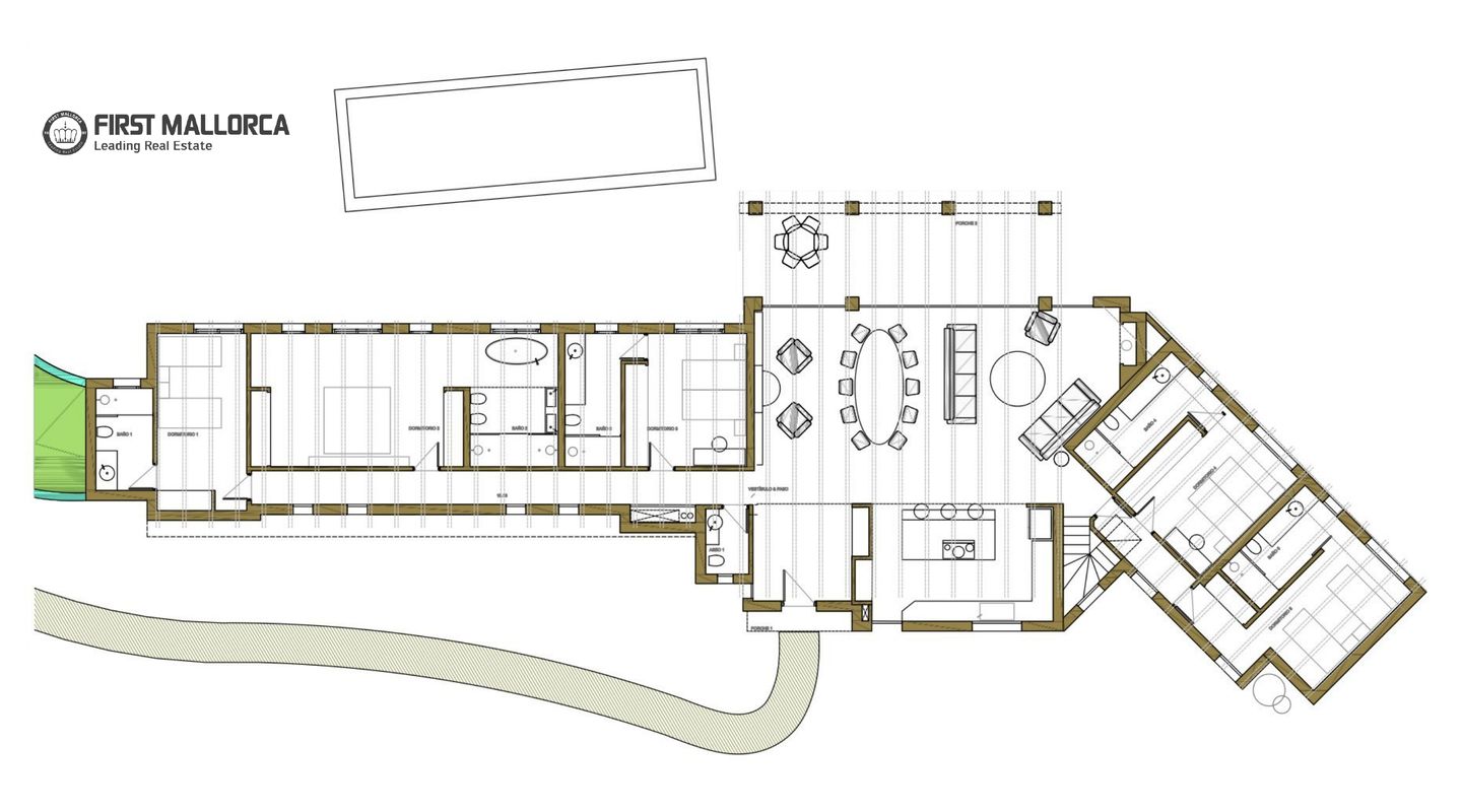
Este proyecto de villa contemporánea de dos plantas en la codiciada urbanización Son Gual II combina elegancia, confort y amplios espacios. El diseño separa claramente las zonas sociales de las alas de dormitorios, mientras que todas las áreas de servicio y funcionales se ubican en la planta inferior. La villa incluye varias suites, una piscina y un área de bienestar con gimnasio.
Cuenta con cinco habitaciones y siete baños en total, cinco de ellos en suite. La Master Suite dispone de amplio dormitorio, vestidor y baño en suite con doble lavabo, ducha e inodoro. La Junior Suite incluye su propio vestidor y baño en suite, mientras que dos dormitorios adicionales comparten un baño completo con doble lavabo, bañera y ducha. Un quinto dormitorio, tiene baño en suite, y un aseo adicional sirve a las zonas comunes.
La planta principal integra salón y comedor en un espacio abierto con acceso directo a un porche cubierto que recorre toda la fachada y a la piscina rectangular de gran tamaño. La cocina moderna, con isla central y barra, está semiabierta al comedor. Un largo pasillo conecta las habitaciones con las áreas sociales, y una escalera interior da acceso a la planta baja.
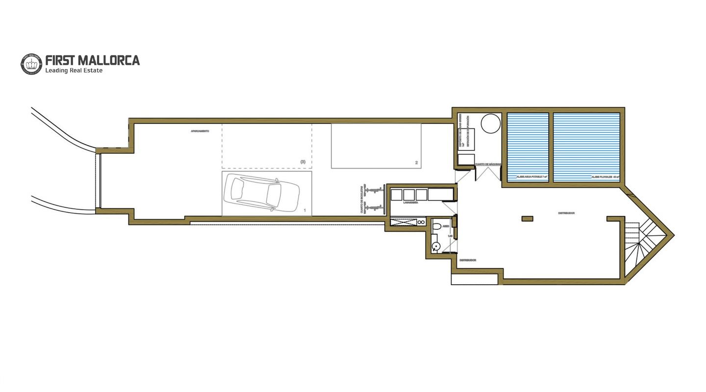
La planta inferior incluye un amplio garaje para 3 coches, gimnasio con salida a un pequeño patio, lavandería, cuarto de instalaciones y un espacio multifuncional para juegos o cine. También dispone de un aseo.
La villa disfruta de vistas abiertas al paisaje y está orientada para aprovechar al máximo la luz natural. Su ubicación en Son Gual II garantiza privacidad, seguridad y fácil acceso a Palma, el aeropuerto internacional y al prestigioso Golf Son Gual, a solo minutos.
Ideal para familias e inversores que buscan lujo, diseño y confort en un entorno exclusivo y tranquilo. Cada detalle ha sido pensado para ofrecer una experiencia de vida única en Mallorca.
Contacte con nuestro equipo de First Mallorca para más información o para programar una visita privada.










En progreso/ Excluido







































