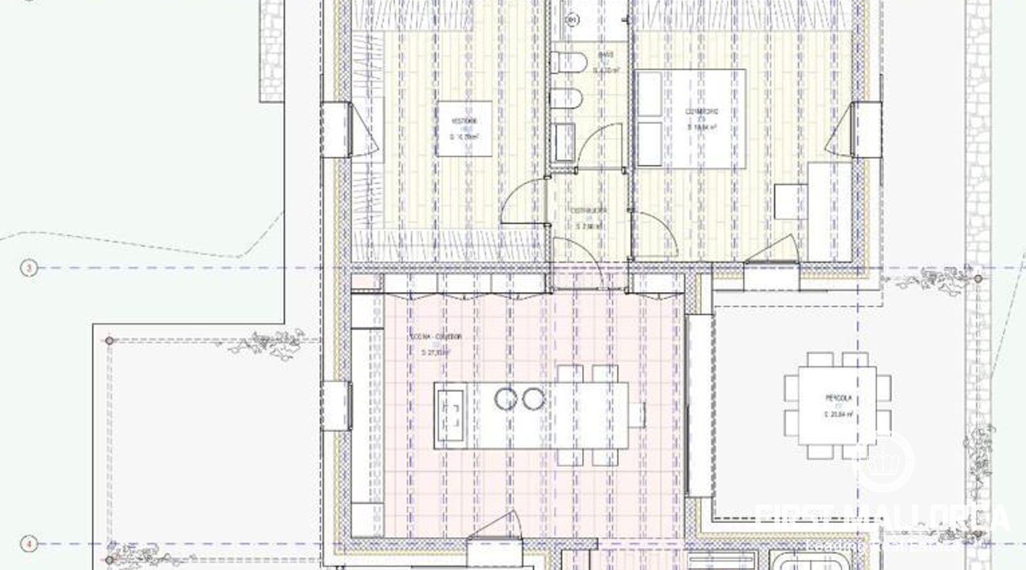
Большой земельный участок в деревне Сант Жоан, в центре Майорки, с удобным подъездом по дороге и с очень хорошими беспрепятственными видами на ландшафт. На участке имеется предварительный проект строительства дома современного дизайна площадью около 200 м² с бассейном, в котором предполагается слить постройку с ландшафтом.
Это отличная инвестиционная возможность по очень привлекательной цене построить свой собственный дом посреди природы Майорки. Для получения дополнительной информации об этом большом участке, пожалуйста, свяжитесь с одним из наших агентов по недвижимости.






















Энергетический сертификат в процессе




















