Este solar urbano de 2.109 m² se encuentra en la urbanización Son Gual II y cuenta con un proyecto y licencia aprobada para la construcción de una villa moderna de una sola planta. Diseñada para aprovechar al máximo la luz natural y las vistas, la vivienda ofrece una clara separación entre las zonas sociales y privadas, además de amplios espacios exteriores con una gran terraza orientada al sur y piscina.
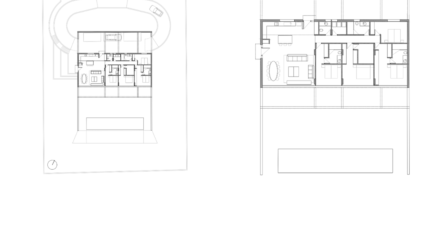
La casa proyectada dispone de 4 dormitorios y 4 baños en total, 3 de ellos en suite. Todos los dormitorios se ubican en un ala privada en el lado este de la vivienda, lo que garantiza sol de mañana y privacidad. Cada dormitorio está concebido para una cama doble e incluye armarios empotrados.
La zona principal es un espacio diáfano que integra cocina, comedor y salón. La cocina cuenta con una gran isla con barra para asientos, el comedor ofrece espacio para una mesa grande de ocho plazas y el salón se abre directamente a la terraza y a la piscina de 60 m², creando un estilo de vida que conecta interior y exterior sin interrupciones.
El aparcamiento se sitúa en el exterior, con capacidad para al menos tres vehículos, accesible mediante una rampa curva que conduce al nivel de entrada de la casa. La villa está diseñada íntegramente en una sola planta, aunque la pendiente natural de la parcela aporta carácter y permite disfrutar de vistas elevadas del entorno.
La urbanización Son Gual II, situada a 150 metros sobre el nivel del mar, dispone de agua, electricidad, alcantarillado y telecomunicaciones. Su único punto de acceso refuerza la privacidad y la seguridad. La ubicación es excelente: a solo 10 minutos del aeropuerto internacional de Palma, 15 minutos del centro de la ciudad y a escasos metros del campo de golf Son Gual.
Contacte con nuestro equipo de First Mallorca para más información o para concertar una visita.




















En progreso/ Excluido


























