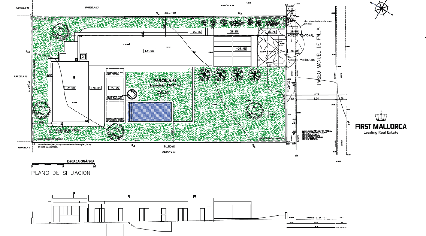
Beläget i det lugna bostadsområdet Cala Magrana, representerar denna tomt en exceptionell möjlighet att bygga ditt drömhem. Den har en rektangulär form, är helt plan och har en optimal orientering för att maximera naturligt ljus under hela dagen. Dessutom är tomten helt inhägnad, vilket garanterar avskildhet och säkerhet.
Det grundläggande projektet för en enbostadsvilla med pool har redan lämnats in till kommunen i augusti 2024, och alla avgifter är betalda. De geotekniska och topografiska studierna är också slutförda, och man väntar nu på godkännande av bygglovet.
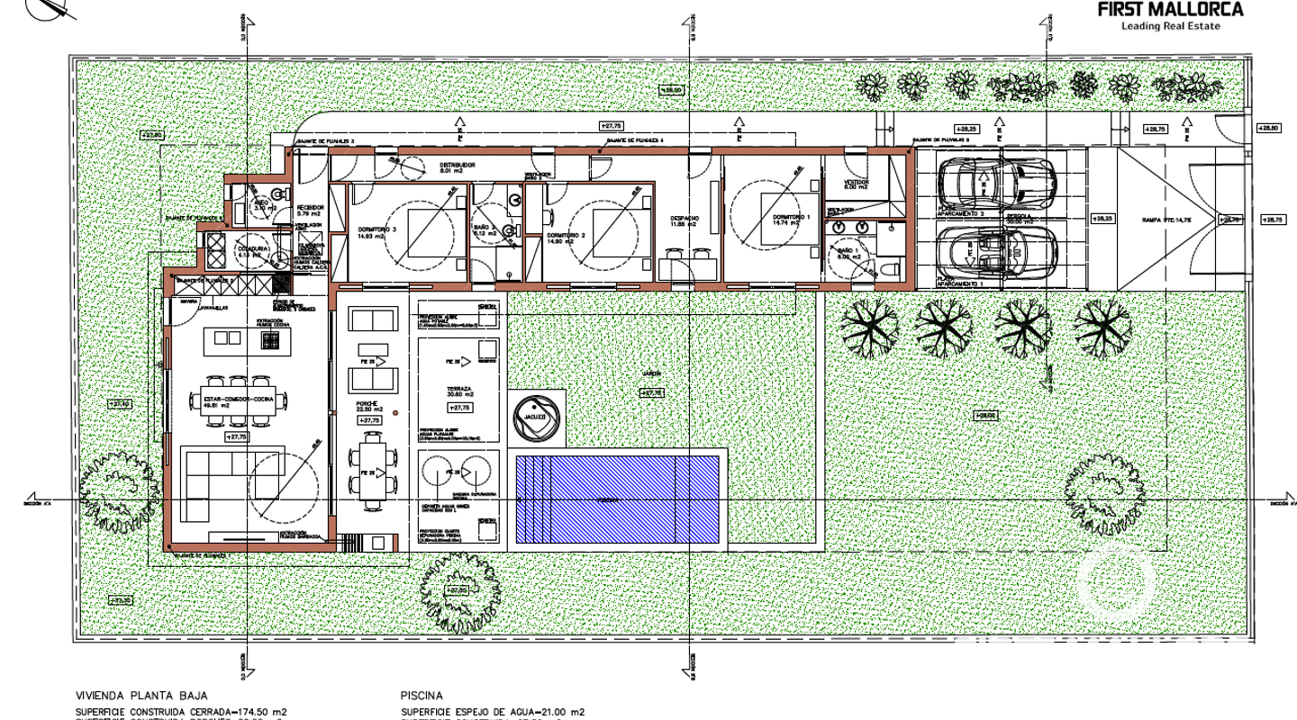
Det planerade huset kommer att ha fyra sovrum och tre badrum, varav två med direkt utgång till terrassen. Vardagsrummet med öppet kök kommer att ha en generös yta på 55 kvadratmeter, vilket skapar en öppen och ljus atmosfär. Huvudsovrummet på 20 kvadratmeter kommer att ha ett eget badrum och en walk-in-closet, vilket ger en privat och exklusiv del av hemmet.
Bland egenskaperna finns en privat pool, jacuzzi och två parkeringsplatser, allt designat för maximal komfort och exklusivitet.
Tomten ligger i ett familjevänligt område och inom gångavstånd från de spektakulära stränderna Cala Magrana och Cala Anguila. Ett privilegierat läge som kombinerar lugn och närhet till havet, vilket gör det till en idealisk investering både för permanent boende och som fritidshus.
















E-Certificate is in progress








































