Denna exklusiva tomt i Son Gual II, med beviljad bygglov, ligger i ett av de mest lovande områdena i Palma. Med 9.124 m² mark har den redan det godkända genomförandeprojektet och är redo för byggandet av en modern lyxvilla.
Projektet omfattar en bostad med 3 sovrum och 5 badrum (3 fulla badrum och 2 gästtoaletter), med 346 m² användbar yta och 371 m² byggd yta, utformad för att intelligent separera sociala och privata områden, maximera naturligt ljus, fri utsikt och daglig bekvämlighet. Höjdpunkter inkluderar:
-Öppet vardagsrum och kök-matplats, med direkt tillgång till terrass och pool, perfekt för familjeliv och umgänge.
-Master suite med rymlig walk-in-closet och spaliknande badrum.
-Två ytterligare sovrum med eget eller delat badrum, samt praktiskt tvättrum.
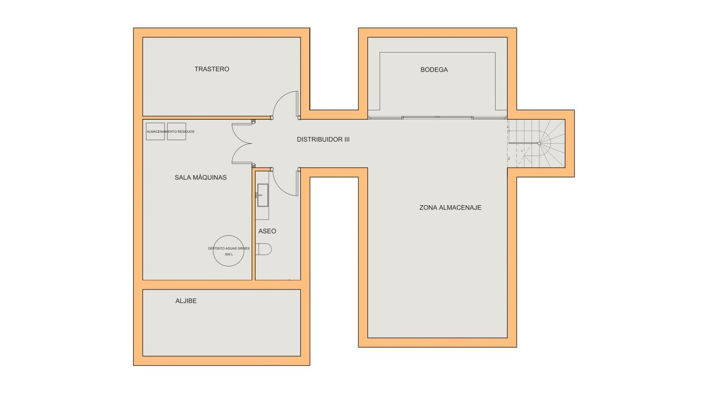
-Nedre våning erbjuder:
-Rymlig förvaring och tekniska utrymmen
-Vinkällare
-Maskinrum och vattencistern
-Gråvatten-system för återvinning och hållbarhet
-Extra gästtoalett
Utomhus finns en 50 m² stor swimmingpool, två täckta verandor för utomhusliv, parkering för två bilar och en naturmiljö omgiven av träd, vilket säkerställer privatliv och lugn. Tomtens lätt sluttande terräng används för panoramautsikt och harmonisk integration i landskapet.
Son Gual II är en etablerad, högkvalitativ bostadsområde med samtida arkitektur, lugn och välanslutet, endast 15 minuter från centrala Palma, med snabb tillgång till flygplats, golfbanor och viktiga tjänster.
En unik möjlighet att utveckla ett lyxigt bostadsprojekt, som kombinerar komfort, modern design och en exklusiv miljö med hög värdestegringspotential.
Kontakta vårt First Mallorca-team för mer information eller för att boka en visning.
















E-Certificate is in progress


























