Tomt på 8.135 m² i Son Gual II med inlämnat projekt, redo för byggnation av en enfamiljsvilla på 507 m² byggt (477 m² bostadsyta) med 35 m² pool. Belägen på en höjd med fri utsikt över Tramuntana och högsta möjliga privatliv.
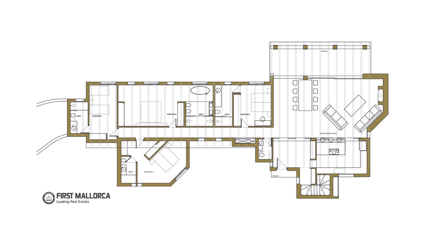
Projektet omfattar 4 sovrum och 6 badrum (4 en suite, plus gäst-WC i källarplan) med modern design och öppna ytor. Vardagsrum-matsal-kök öppnar mot utsidan via stora fönster och knyter samman med trädgård och pool. Två täcka uteplatser möjliggör utomhusliv och sociala ytor.
Huvudvåningen är uppdelad i sociala och privata områden, inklusive master suite med spa-badrum. De andra tre sovrummen är rymliga, med en suite eller delade badrum.
Källarplan inkluderar stor garage för minst två bilar, tvättstuga, förråd, poolteknikrum och extra WC.
Urbanisationen har el, vatten, avlopp och telekommunikationer, med god kommunikation: 15 minuter till Palma, 10 minuter till flygplatsen, nära Golf Son Gual och några av Mallorcas vackraste stränder.
Kontakta vårt First Mallorca-team för mer information eller för att boka ett besök.
















E-Certificate is in progress





























